฿8,500,000
Sold Mar 19, 2025
Sold price verified
3 Bedroom Condo for sale at Palm Hills Golf Club & Residence
Listing ID: U1701100S
3Beds
3Baths
262SqM
FloorGround
Features
Pool Access
Garden Access
Terrace
Full Western Kitchen
Microwave
Oven
About this Condo
This property is a 262 SqM condo with 3 bedrooms and 3 bathrooms that is available for sale. It is part of the Palm Hills Golf Club & Residence project in Cha-Am, Phetchaburi. You can buy this condo for a base price of ฿8,500,000 (฿32,443/SqM). and was completed in Dec 1995
Golf Condo in Hua Hin/Cha-Am at Palm Hills Golf Resort (235)
Golf Condo in Hua Hin/Cha-Am at Palm Hills Golf Club & Residence, just a 15-minute drive from Hua Hin/Cha-am city centers.
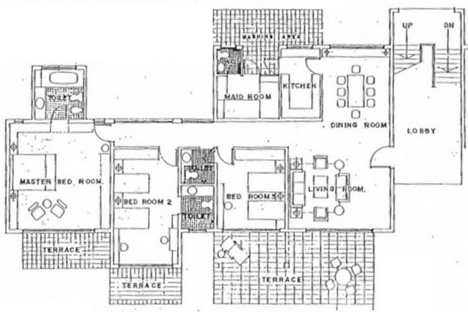
The condo, a ground floor unit overlooking a beautiful tropical area with palms, features a spacious living/dining room with sliding doors to the balcony, fully fitted European style kitchen, 4 large bedrooms and 4 bathrooms. All bedrooms with exit to the terrace and garden.
Palm Hills offer a wide range of facilities and services including 18-Hole championship golf club and Sports Club offering a large swimming pool, well-equipped fitness center, tennis, badminton and squash.
Special features: Golf club membership
The Condo is owned with Foreign Quota and sells fully and tastefully furnished.
Estate completed in 1995. The Condo has been fully renovated and upgraded.
Compulsory maintenance fee 33 THB/Sqm/Month (8,646 THB/Month).
Basic Information
Date Listed
Dec 6, 2023
Updated At
May 1, 2025
Property Type
Condo
Floor
Ground
Beds
3
Baths
3
SqM
262
Price per SqM
฿32,443
Pets
Not Allowed
Condo Ownership
Quota
Furniture Status
Partly Furnished
View(s)
Garden View, Golf Course View, Lake View, Mountain View, Park View
Year Built
1995
Investment Opportunity: Charges & Yield
CAM Fee
฿8,646/mo
Project Details

Construction
Completed (Dec 1995)
Floors
2
Units
56
Nearest Landmark
Hua Hin Beach- 1.3 Km
Location
Cha-Am, Phetchaburi
Neighborhood Overview
Buy
฿580K - ฿821M
For Sale on Dot Property
1,082
Rent
฿4.83K - ฿371K
For Rent on Dot Property
304
To Palm Hill Golf Club Hua Hin
1.0 km / 2 minutes by driving
To Hua Hin Airport
5.8 km / 10 minutes by driving
The information contained in this listing forms a property advertisement of which www.dotproperty.co.th has no control over content contained within. Furthermore, www.dotproperty.co.th cannot guarantee the accuracy of listing information, linked content or associated resources provided by private sellers, agencies or developers for the purpose of advertising. The advertiser assumes all responsibility for the advertisement details, please contact Palm Hills Golf Club & Residence for further detail.
































































































