฿8,900,000
Sold Oct 06, 2020
Price shown is the last listed price as sold price was not provided
3 Bedroom House for sale in Nong Chom, Chiang Mai
Listing ID: U154398S
3Beds
4Baths
360SqM
680SqM Land Plot
Features
Rooftop Terrace
Private Garden
Maids Quarters
About this House
This property is a 360 SqM house with 3 bedrooms and 4 bathrooms that is available for sale.. You can buy this house for a base price of ฿10,000,000 (฿27,778/SqM). and was completed in Nov 2017 It is located in Nong Chom, Chiang Mai
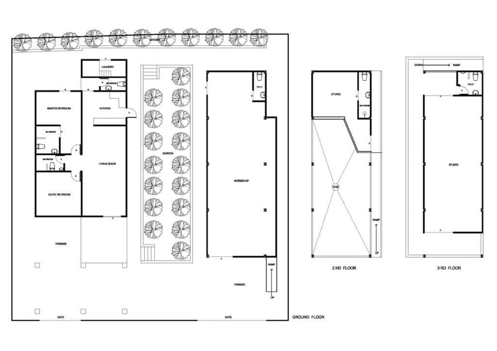
2 Buildings on 2 plots - a Newly Renovated House and Brand New Fully Functioning Workshop with Studio Space
A unique property on two plots with a totally renovated single story house.
Next to it, with garden in between, is a very large stand-alone workshop (2 stories in height with split levelOn the third floor level is a light-filled all-purpose studio (Or, eventually living space) with giant sliding doors front and back.
The workshop is ideal for a small business or production center. It could also easily be adapted into a luxury living space.
Super conveniently positioned near all amenities and 10 minutes from the city!
Basic Information
Updated At
May 1, 2025
Property Type
House
Beds
3
Baths
4
SqM
360
Price per SqM
฿27,778
Pets
Not Allowed
Land Ownership
Ownership
House Ownership
Ownership
Furniture Status
Fully Furnished
Electricity Price
Government Rate
Water Price
Government Rate
Year Built
2017
Investment Opportunity: Charges & Yield
Neighborhood Overview
Buy
฿1.16M - ฿101M
For Sale on Dot Property
138
Rent
฿10.6K - ฿96.6K
For Rent on Dot Property
52
























































