17-3-70Rai
฿14,504,477Price per Rai
28,681SqM
About this Land
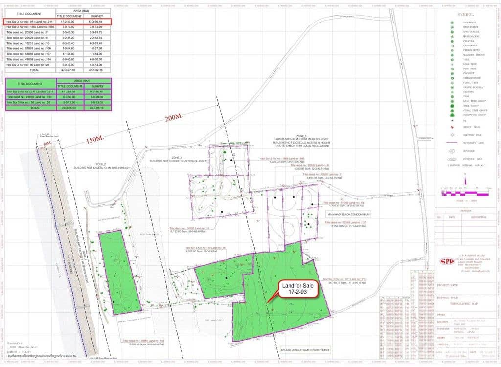
This property is a 28,680.80 SqM land plot that is available for sale. It is located in Mai Khao, Phuket. You can buy this land for a base price of ฿260,000,000 (฿9,065/SqM).
Dreams Await You: Phuket's Stunning 28,680.80 SqM
Basic Information
Updated At
Dec 14, 2025
Property Type
Land
SqM
28,681
Price per Rai
฿14,504,477
Land Ownership
Ownership
Furniture Status
Unfurnished
Electricity Price
Government Rate
Water Price
Government Rate
Year Built
N/A
Investment Opportunity: Charges & Yield
Sale Price
฿260,000,000
Neighborhood Overview
Buy
฿1.18M - ฿1.16B
For Sale on Dot Property
365
Rent
฿6.86K - ฿490K
For Rent on Dot Property
102












