฿6,100,000
Land for sale in Thep Krasattri, Phuket
Listing ID: U5720211S
0-1-5Rai
฿23,238,095Price per Rai
420SqM
About this Land
This property is a 420 SqM land plot that is available for sale. It is located in Thep Krasattri, Phuket. You can buy this land for a base price of ฿6,100,000 (฿14,524/SqM).
🌴 Exceptional Opportunity to Build Your Dream Pool Villa 🌴
This is a fantastic opportunity to purchase and develop a spacious family home or luxury villa — or have it built for you!
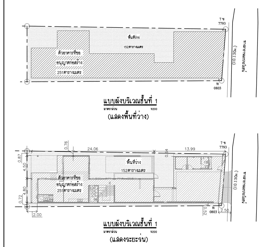
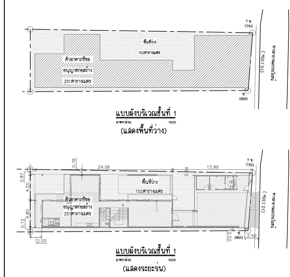
The current owner is providing full architectural drawings ready for submission to construct a stunning 5-bedroom, 5-bathroom pool villa designed for modern living and comfort.
The property benefits from its own private well, as well as electricity and municipal water connections already available. Thanks to the unique dual-access configuration of the land plot, you’ll enjoy convenient entry from both sides of the property.
Perfectly located just a short walk to the new lake and promenade, currently under construction, this property offers a serene environment with exciting future amenities nearby. Additionally, it’s only 3 km from Boat Avenue and approximately 2 km from beautiful Layan Beach, making it an ideal choice for both full-time living and investment.
✨ Property Highlights:
- Full architectural plans ready for submission
- 5 Bedrooms / 5 Bathrooms Pool Villa
- Private well plus electricity and municipal water supply
- Dual access from two sides of the land
- Prime location near the new lake promenade
- Only 3 km from Boat Avenue and 2 km from Layan Beach
Basic Information
Date Listed
Sep 9, 2025
Updated At
Dec 13, 2025
Property Type
Land
SqM
420
Price per Rai
฿23,238,095
Land Ownership
Ownership, Company
View(s)
City View, Lake View, Mountain View, Pool View, River or Canal View, Unblocked Open View
Electricity Price
Government Rate
Water Price
Government Rate
Year Built
N/A
Investment Opportunity: Charges & Yield
Sale Price
฿6,100,000
Neighborhood Overview
Buy
฿1.57M - ฿1.18B
For Sale on Dot Property
1,034
Rent
฿11.8K - ฿441K
For Rent on Dot Property
305
Explore Dot Property
Properties for sale in near BTS or MRTProperties for sale in Thep KrasattiCondos for sale in Thep KrasattiTownhouses for sale in Thep KrasattiHouses for sale in Thep KrasattiCommercial properties for sale in Thep KrasattiLand for sale in Thep KrasattiVillas for sale in Thep KrasattiApartments for sale in Thep Krasatti






