฿210,870/ Month
Office for rent in Lumphini, Bangkok
Listing ID: U5834363R
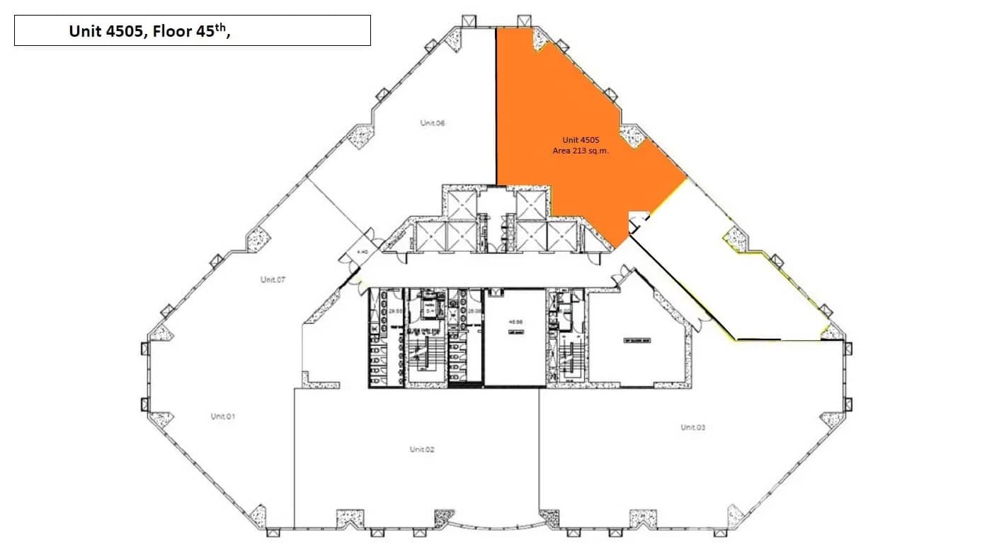
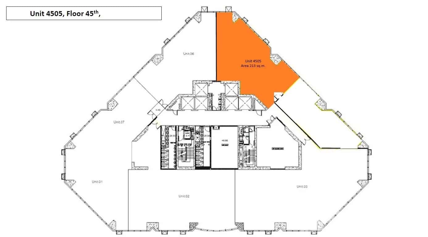
213SqM
About this Office
It is located in Lumphini, Bangkok and was completed in Jan 2001. You can rent this office long term for ฿210,870 per month.
The office is located on 45th floor.
Basic Information
Date Listed
Oct 30, 2025
Updated At
Dec 10, 2025
Property Type
Office
Bath
1
SqM
213
Price per SqM
฿990
Furniture Status
Partly Furnished
View(s)
City View, Unblocked Open View
Electricity Price
Government Rate
Water Price
Government Rate
Year Built
2001
Investment Opportunity: Charges & Yield
Rental Price
฿210,870
Neighborhood Overview
Buy
฿2.16M - ฿2.94B
For Sale on Dot Property
731
Rent
฿7.84K - ฿2.45M
For Rent on Dot Property
2,209












