



























































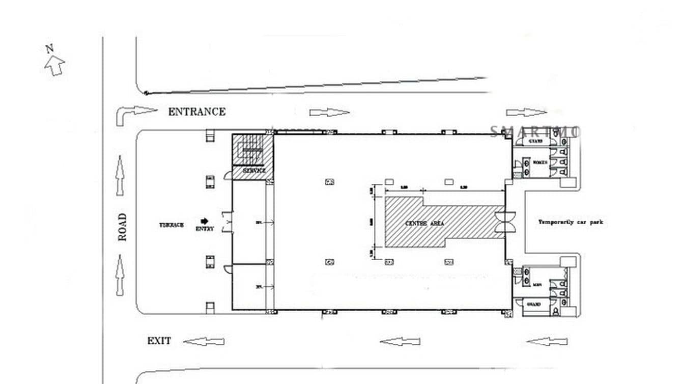
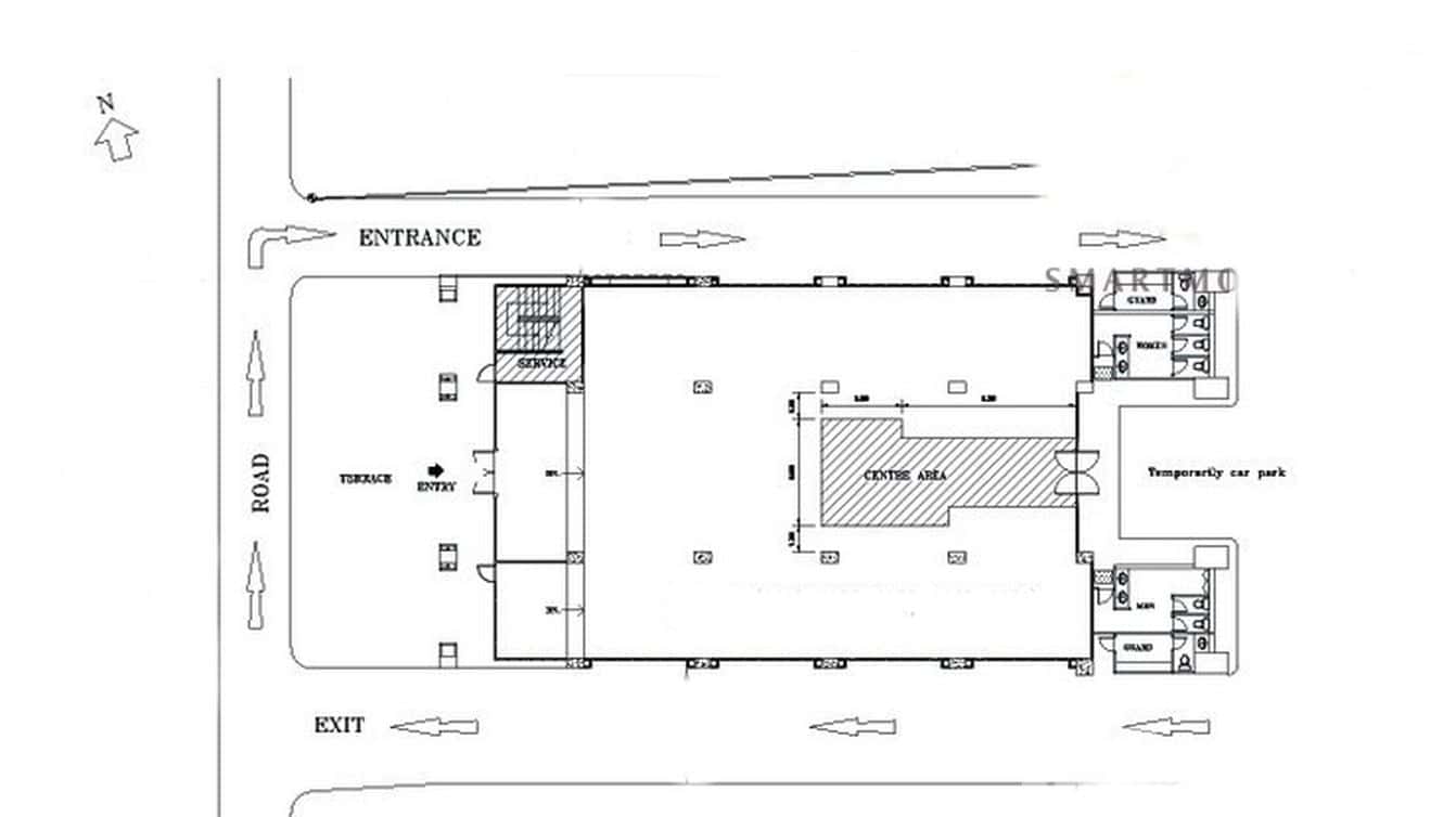
For Sale
42 Units (฿5.94M - ฿18.8M)For Rent
78 Units (฿22.8K - ฿74.4K /month)Baan Chao Praya is conveniently located just 300 m from 7-Eleven, which can be reached within 4 mins. by foot.
There are many other shops situated in the area of Baan Chao Praya, the 3 closest being:
- Hiang Ki Restaurant is 140 m away (about 2 mins. by foot)
- Klong San Pier is 590 m away (about 7 mins. by foot)
- Petch Thong Ratchapruek is 600 m away (about 8 mins. by foot)
The surrounding area, where Baan Chao Praya is situated, offers a wide variety of restaurants. See the closest of them below:
- Jae Beer Food to order is 20 m away (a walk of about 1 min.)
- Jay Ankhao, Pork Leg is 70 m away (a walk of about 1 min.)
- Society Fried Pork Rice is 120 m away (a walk of about 2 mins.)
Fitness Center Taksin Hospital is the nearest health facility, which is 520 m away (you can walk there in 6 mins.) from the project, while the closest schools in the proximity of Baan Chao Praya are:
- Wat Thong Noppakun School is 90 m away (about 1 min. by foot)
- Watthongnoppakhun School is 120 m away (about 1 min. by foot)
- Thonburi Polytechnic Beauty Salon is 530 m away (about 7 mins. by foot)
Suvarnabhumi Airport is located 38.4 km from Baan Chao Praya and it takes about 40 mins. by car or taxi (depending on the traffic) to get there.