Start living your freedom life at Resorta Yen-Akat, a resort-style low-rise condominium that allows you to experience a shady atmosphere amidst nature and many beautiful trees in a Balinese-style garden and to make your daily life more relaxing than ever before. There are also great amenities in the common area, such as a swimming pool, a garden, a sauna, etc. In addition, it provides a variety of room sizes ranging from 1 to 3 bedrooms and usable areas ranging from 39 to 104 square meters. "Resorta Yen-Akat" is ready for you to be a part of the peaceful and private atmosphere here today.
Resorta Yen-Akat is located in the Rama 3 area, surrounded by amenities such as Centralplaza Rama 3, The Up Rama3, Nanglinchee Market, Karunapitak Hospital, Praharuthai Convent School, and Rajamangala University of Technology Krungthep. It is also a convenient location for traveling because it is only a few minutes drive from the Chalerm Mahanakorn Expressway and Khlong Toei MRT Station.
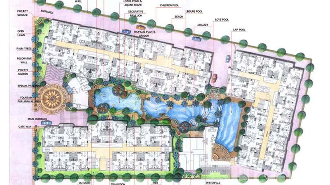
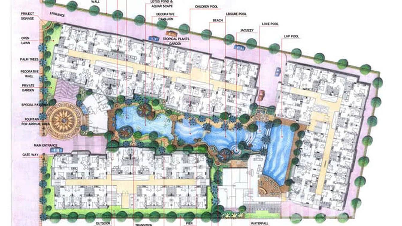
Project Information Resorta Yen-Akat is classified as a low-rise condominium project with 8 floors, 3 buildings, 308 residential units, and a parking area of approximately 60% of the total units. The project is located at Soi Amorn, Nanglinchee Road, Chong Nonsi, Yan Nawa, Bangkok. It was developed by Goldman and completed in 2005.
Project Facilities - 24-hour security system - Car parking - CCTV - Key-card access - Elevator - Communal saltwater pool - Communal gym - Garden - Sauna
Direction to the Project - To get to the project by public transport, you can take the MRT. The nearest station is Khlong Toei MRT. Once you get off the station, you can take a motorcycle taxi to get to the project. The distance is about 2.6 kilometers or takes about 11 minutes. - To get to the project by car, you can start from Centralplaza Rama 3 by heading east on Ratchadaphisek Road for about 1.1 kilometers. Then, continue straight to enter Nang Linchi Road. Drive for 300 meters and turn right into Soi Amorn. After that, go straight for 700 meters, and you will find the project on your left-hand side.