



















For Sale
80 Units (฿4.86M - ฿10.8M)For Rent
340 Units (฿14.9K - ฿49.6K /month)Rhythm Sukhumvit 44/1, a luxury condominium in the heart of Sukhumvit that will allow you to experience a new dimension of relaxation and endless happiness through the "Eco Living" concept, which is inspired by the innovation of bringing natural light into common areas through Solar Cell technology. The resident also can completely unwind with premium facilities, such as a yoga yard, a relaxing garden on the 5th floor, an infinity-edge swimming pool, and a fitness glass slope that can open up a fabulous panoramic view on the rooftop floor. Furthermore, Rhythm Sukhumvit 44/1 also pays close attention to the design, whether a modern luxury building or a room in dark tone colors, which is decorated with glossy materials and comes with a double access bathroom, etc., that give a feeling of luxury. It can meet every lifestyle of the new generation's good taste.
Rhythm Sukhumvit 44/1 is located in a popular city location, convenient to travel, with your private car via Rama 4 Road and Ramindra – At Narong Expressway or Phra Khanong BTS, which is located next to the project. It is surrounded by a lifestyle center that can support all lifestyles, such as Gateway Ekamai, Science Center for Education and Planetarium, Eastern Bus Terminal Ekkamai, On Nut Market, Big C Extra On Nut, Sukumvit Hospital, Samitivej Hospital, Srivikorn School, St Andrews International School Bangkok, etc.
Project Information
Rhythm Sukhumvit 44/1 is located at 6/4 Sukhumvit Road, Phra Khanong, Khlong Toei, Bangkok. It is a high-rise condominium project of 1 building, 34 floors, and 2 basement floors on an area of 3 rai. The project consists of 486 residential units (18 units per floor, with approximately 270 parking spaces or 60%, including double parking). It was developed by AP (Thailand) and was completed in 2013.
Room Types and Details
- Duplex 1 Bedroom (55.2 sq.m.)
- 1 Bedroom (31.5 - 48.0 sq.m.)
- 2 Bedrooms (50.70 - 68.5 sq.m.)
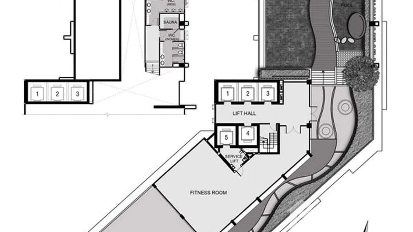
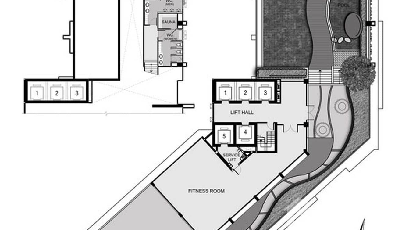
Project Facilities
- Communal gym
- 24-hour security system
- Car parking
- CCTV
- Key-card access system
- Elevator
- Communal saltwater pool
- Sauna
- Garden
- Playground
- Yoga room
Direction to the Project
- To get to the project by public transport, you can take the BTS Skytrain because the project is located next to Phra Khanong BTS. Once you get off the station, walk back to the area under the BTS station, and you will find the project on your right-hand side.
- To get to the project by car, you can start from EmQuartier by heading southwest on Sukhumvit Road (Route 3) for 1 kilometer and make a U-turn in front of Soi Sukhumvit 49. Then, continue straight for 100 meters, and you will find the project on your left-hand side.
Rhythm Sukhumvit 44/1 is conveniently located just 90 m from MaxValu Tanjai, which can be reached within 2 mins. by foot.
There are many other shops situated in the area of Rhythm Sukhumvit 44/1, the 3 closest being:
- FamilyMart is 230 m away (about 3 mins. by foot)
- FamilyMart is 230 m away (about 3 mins. by foot)
- Tops daily mini supermarket | Summer Hill is 220 m away (about 3 mins. by foot)
The surrounding area, where Rhythm Sukhumvit 44/1 is situated, offers a wide variety of restaurants. See the closest of them below:
- Jasmine Hotel is 90 m away (a walk of about 2 mins.)
- mustache is 90 m away (a walk of about 1 min.)
- AKIYOSHI is 150 m away (a walk of about 2 mins.)
Primary care unit, Universal Health Insurance Card, Kluaynamthai Hospital is the nearest health facility, which is 690 m away (you can walk there in 8 mins.) from the project, while the closest schools in the proximity of Rhythm Sukhumvit 44/1 are:
- the-Raffine is 70 m away (about 1 min. by foot)
- Bangna is 150 m away (about 2 mins. by foot)
- Myo Thein Htay Oo is 210 m away (about 3 mins. by foot)
Suvarnabhumi Airport is located 32.4 km from Rhythm Sukhumvit 44/1 and it takes about 33 mins. by car or taxi (depending on the traffic) to get there.