

































































































































For Sale
215 Units (฿3.52M - ฿18.3M)For Rent
327 Units (฿13.1K - ฿80.4K /month)Rhythm Sukhumvit 36-38 is a new design condominium that is suitable for people who want to live in the Thonglor area. Also, it is ideal for people who wish to escape from the hustle and bustle. It is only 7 minutes walk and away from Thonglor BTS Station, easy access to town, and surrounded by numerous popular shops.
The highlight of the project is the Japanese influenced by the concept of "Living Unordinary". There is Japanese style gardening called "Engawa" the landscaping that decorated with stone, and a balcony made of wood. Those are the places that link between the exterior and interior space. The concept of the project is also emphasized in the green area. Besides, the building is designed in U shape and has a double volume ceiling lobby hall with 5 meters high.
Location
The project is located between Soi Sukhumvit 36 and Sukhumvit 38, Phrakhanong Subdistrict, Phra Khanong District, Bangkok.
Project Details
The project's owner of Rhythm Sukhumvit 36-38 is AP Company jointly developed with Mitsubishi Estate. A high-rise condominium with a U-shaped building, the total area of 2-2-76.3 rai, one building, 25-Storey, and one basement floor with 496 units, and 213 parking spaces cars. The parking space is on the 1st-5th floor, accounting for 43% (excluding double parking) with four passenger elevators and one service elevator.
Room Types
- Studio size 24 sq.m
-1 Bedroom size 33-48 sq.m
- 2 Bedrooms size 54.5-86 sq.m
This project selling with Fully-fitted; kitchenware, built-in-furniture and air conditioner.
Facilities
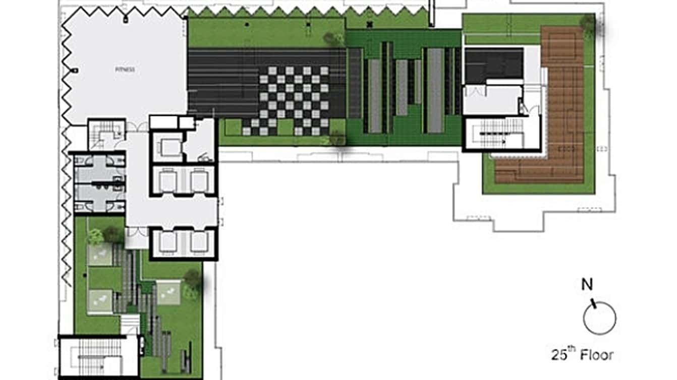
There are ranges of facilities for all residents, usually on the 6th and the 25th floor.
The 6th floor offers a salt-water swimming pool, swimming pool for children and adults, a jacuzzi, and a sauna system for men. Also, a streaming room provides for women. On the 25th floor is the common area where the gym with full equipment. Also, you can enjoy the view of Bangkok at the rooftop garden. Besides, there are seating areas allowing residents to enjoy and relax with unlimited views.
Direction to Project
- Traveling by private car, you can take the Sukhumvit Road or Rama IV Road. If you come from Sukhumvit Road, you can consider both Soi Sukhumvit 36 and Soi Sukhumvit 38 because the project has cut its land to make a public road connecting those two Soi. However, if you are going to Sathorn or Silom areas, you can take Bypass Sukhumvit Road to Rama IV Road instead.
- Traveling by public transport, the project is close to Thonglor BTS, just 350 meters, there is a taxi and motorbikes services as well. In the case of getting off from Thonglor BTS station, you can take the exit gate 4, heading towards Phrom Phong Road, and turning left into Soi Sukhumvit 38, walk straight through the entrance to Soi Sukhumvit 36 and turn into the alley. The project will be on the right-hand side.
Nearby Places
- Thonglor BTS Station 350 m.
(Entrance from Sukhumvit Soi 36)
- Thonglor BTS Station 500 m.
(Entrance from Sukhumvit Soi 36)
- Gateway Ekamai 1.6 km.
- Big C Rama IV 1.5 km.
- Benjasiri Park 1.7 km.
Rhythm Sukhumvit 36-38 is conveniently located just 320 m from V Shop 24/7 Convenience Store Sukhumvit 36, which can be reached within 4 mins. by foot.
There are many other shops situated in the area of Rhythm Sukhumvit 36-38, the 3 closest being:
- Aor-Phan Place is 330 m away (about 4 mins. by foot)
- Elevator to Thong Lo BTS Station is 460 m away (about 5 mins. by foot)
- HAGL Ambis Plaza is 450 m away (about 5 mins. by foot)
The surrounding area, where Rhythm Sukhumvit 36-38 is situated, offers a wide variety of restaurants. See the closest of them below:
- OYSTERS QUEEN is 90 m away (a walk of about 1 min.)
- L'OLIVA Italian Restaurant & Wine Bar is 230 m away (a walk of about 3 mins.)
- Olives coffee is 230 m away (a walk of about 3 mins.)
Sukhumvit 36 Clinic (SUKHUMVIT AESTHETICS) is the nearest health facility, which is 320 m away (you can walk there in 4 mins.) from the project, while the closest schools in the proximity of Rhythm Sukhumvit 36-38 are:
- PhiBrows in Thailand is 200 m away (about 3 mins. by foot)
- MASS STUDIO Academy of Arts and Design is 200 m away (about 2 mins. by foot)
- Kobato Kindergarten is 220 m away (about 3 mins. by foot)
Suvarnabhumi Airport is located 27.2 km from Rhythm Sukhumvit 36-38 and it takes about 32 mins. by car or taxi (depending on the traffic) to get there.