About the Developer - Chomchon Eden














































Halls of Eden is an exclusive luxury villa development nestled in the lush heart of Koh Phangan, where refined architecture meets island tranquility. Designed for those seeking both an exceptional lifestyle and strong investment potential, this boutique community offers a rare blend of privacy, wellness, and long-term value.
Each villa is a masterpiece of modern tropical design, created in collaboration with award-winning architects. The residences feature soaring 7.6-meter vaulted ceilings, sunken living areas, and lush indoor trees that seamlessly connect indoor and outdoor living. Natural materials such as stone, tropical hardwood, rattan, and terrazzo are thoughtfully integrated throughout, creating an atmosphere of understated elegance.
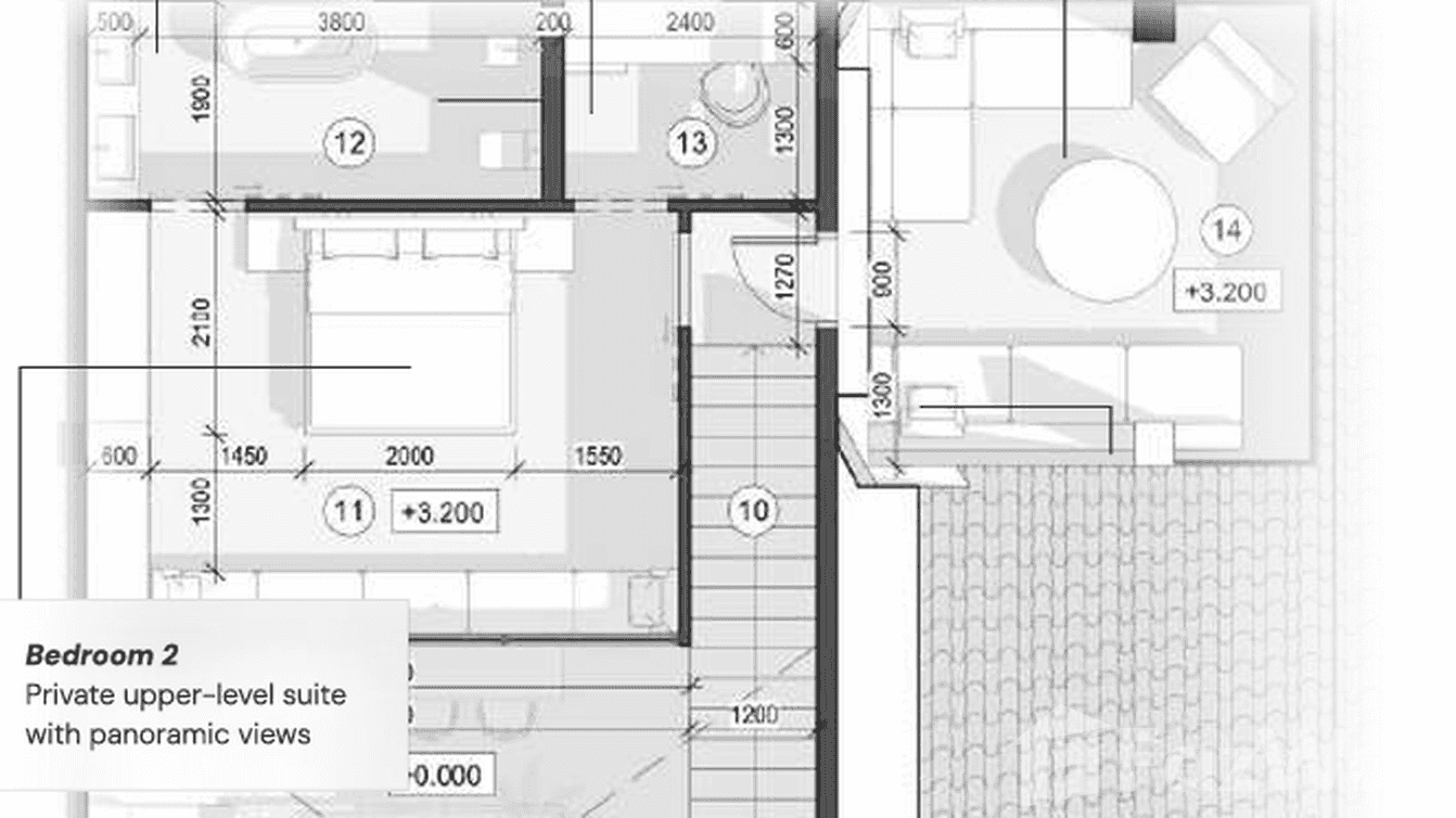
The villas offer four spacious bedrooms, including a luxurious master suite with a private balcony, freestanding bathtub, dual vanity sinks, and rainfall shower. Fully furnished interiors come with premium appliances, a fully equipped kitchen, private mineral swimming pool, landscaped gardens, laundry room, and a dedicated private office—ideal for remote living or extended stays.
Halls of Eden is a master-planned community of just 12 luxury villas, ensuring exclusivity and tranquility. Residents enjoy secure gated access, concierge-style reception services, private roads, and access to shared wellness facilities including a fitness center, yoga and meditation spaces, co-working areas, and lush communal gardens.
Located in a development-friendly Orange Zone, the project is just minutes from Thong Sala Pier, pristine beaches, international dining, schools, and healthcare facilities. With easy ferry connections to Koh Samui and Surat Thani, the location offers both convenience and serenity.
From an investment perspective, Halls of Eden stands out with strong rental demand, high occupancy during peak seasons, and projected annual returns supported by professional rental management options. The limited number of villas and premium positioning make this development a compelling long-term asset in one of Thailand’s most desirable island destinations.
Halls of Eden is more than a home—it is a private sanctuary, a lifestyle destination, and a smart investment for the future.
Halls of Eden is conveniently located just 450 m from 7-Eleven, which can be reached within 6 mins. by foot.
There are many other shops situated in the area of Halls of Eden, the 3 closest being:
- Phantip Plaza is 1.6 km away (an approx. drive of 4 mins.)
- Bellona gold - Bellona gold is 1.6 km away (an approx. drive of 4 mins.)
- Rose de Boheme Boutique is 1.5 km away (an approx. drive of 4 mins.)
The surrounding area, where Halls of Eden is situated, offers a wide variety of restaurants. See the closest of them below:
- Friendship Milk is 460 m away (a walk of about 7 mins.)
- Colorful Hut plant-based Thai Kitchen is 420 m away (a walk of about 6 mins.)
- Whum New New is 460 m away (a walk of about 7 mins.)
Thai International Hospital Koh Phangan is the nearest health facility, which is 3.2 km away (you can drive there in 8 mins.) from the project, while the closest schools in the proximity of Halls of Eden are:
- Human beings kids club is 430 m away (about 6 mins. by foot)
- Matheo School is 1.6 km away (an approx. drive of 4 mins.)
- Phangan Horizons School is 1.6 km away (an approx. drive of 4 mins.)
Samui Airport is located 113 km from Halls of Eden and it takes about 4 hours 2 mins. by car or taxi (depending on the traffic) to get there.