

สวัสดีค่ะวันนี้เรากลับมาพบกันอีกครั้งโดยวันนี้จะพาไปพบแบบบ้าน บ้านคอทเทจชั้นเดียว มีเฉลียงเล็กๆสำหรับรับลมเย็นๆ นั่งชิลๆสบายๆ ในงบประมาณที่ไม่เเพงจนเกินไปค่ะ เพื่่อไม่ให้เป็นการเสียเวลาเราไปชมกันเลยค่ะ โดยตัวบ้านมีลักษณะบ้านชั้นเดียว โครงสร้างไม้ยกสูงจากพื้นเล็กน้อย หลังคาทรงหน้าจั่ว ผนังภายนอกอาจจะปล่อยให้เป็นไม้สีเปลือย หรือเลือกสีที่ถูกใจตกแต่งได้ มีพื้นที่เฉลียงแคบๆ สำหรับนั่งเล่นเพื่อชมบรรยากาศภายนอก

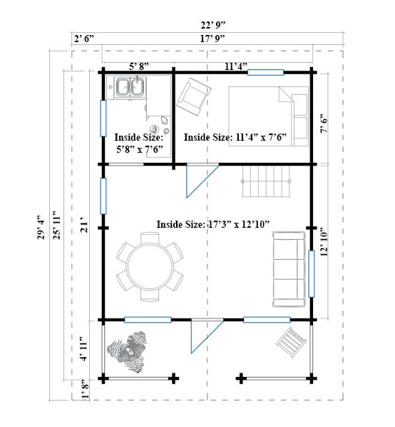
ด้านแปลนบ้าน มีการจัดสรรพื้นที่อย่างเรียบง่าย โดยจะมีโถงกลางไว้ จัดเป็นห้องนั่งเล่น และห้องรับประทานอาหารในตัว มีห้องนอนและห้องน้ำพ่วงอยู่ด้านหลัง


นอกจากนี้ตัวบ้านหลังนี้มีชั้นลอยด้วย โดยจะใช้บันไดพาดขึ้นไป ออกแบบให้เป็นห้องนอนส่วนตัว


บ้านคอทเทจชั้นเดียว พื้นที่ใช้สอยทั้งหมดประมาณ 41 ตารางเมตร
งบประมาณก่อสร้างราว 400,000 – 600,000 บาทครับ (ไม่รวมตกแต่ง) ลองนำไปเป็นไอเดียปรับใช้กันดูนะค่ะ


ขอขอบคุณข้อมูลจาก naibann.com รูปภาพจาก bzbcabinsandoutdoors
ต้องการซื้อ-เช่า !!!คอนโดมือสอง บ้านเดี่ยว ทาวน์เฮ้าส์ ที่ดินทั่วไทยมากกว่า 300,000 รายการคลิ๊กที่นี่
ลงประกาศขาย-ให้เช่า ฟรี !!! คอนโดมือสอง บ้านเดี่ยว ทาวน์เฮ้าส์ ที่ดินกับ Dot Property ขายง่าย ขายไว ไม่มีค่าใช้จ่ายลงประกาศเลย


![บ้าน VS คอนโด จะเลือกผ่อนบ้านหรือคอนโดดี [บทความนี้มีคำตอบ]](https://wp-assets.dotproperty-kh.com/wp-content/uploads/sites/9/2022/03/29111126/FB_032022-9-218x150.jpg)


