

สวัสดีค่ะวันนี้เรากลับมาพบกันอีกครั้งโดยครั้งนี้ขอเอาใจคนต่างจังหวัดบ้างค่ะ โดย แบบบ้านไม้ หลังนี้เป็น แบบบ้านสไตล์รีสอร์ท กลางธรรมชาติ ยกสูงจาก ผลงานจาก baanbaab.com มีชื่อว่า แบบบ้านไม้สำเร็จรูป W-082 เพื่อไม่ให้เป็นการเสียเวลาเราไปชมกันเลยค่ะ

ตัวบ้านนั้นมีลักษณะบ้านไม้ทรงรูปแบบดั้งเดิมยุคเก่า ที่ออกแบบมาพร้อมเฉลียงหน้าบ้านมีม้านั่งในตัว ทางเข้าเฉลียงมีซุ้มหน้าบ้านให้อารมณ์เหมือนยุคเก่า หลังคาทรงมนิลามุงด้วยกระเบื้องสีน้ำตาล ตัวบ้านยกพื้นสูงพอประมาณ

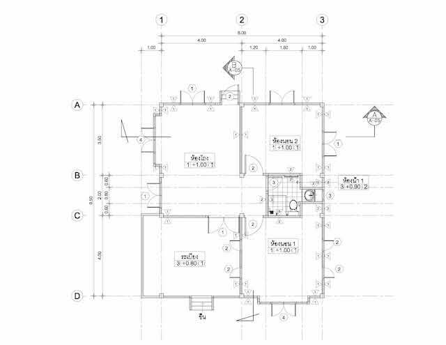
ด้าน แปลนบ้าน เริ่มจากจัดห้องโถงไว้ด้านซ้ายจากระเบียงหน้าบ้าน โดยจะรวมห้องครัวไปในตัวและห้องรับประทานอาหารไปในตัว ส่วนห้องนอนทั้ง2ห้องจะอยู่ด้านขวามือ โดยจะอยู่ด้านหน้าและหลังสุดของตัวบ้านโโยมีห้องน้ำจัดอยู่ตรงกลางระหว่างห้องนอนค่ะ
บ้านหลังนี้มีทั้งหมด 2 ห้องนอน 1 ห้องน้ำ พื้นที่ใช้สอยขนาด 82 ตารางเมตร คิดเป็นงบก่อสร้างจะอยู่ที่ราว 900,000 บาทค่ะ (ขึ้นอยู่กับวัสดุที่เลือกใช้)
สำหรับท่านที่สนใจ แบบบ้านไม้ ชั้นเดียว สามารถติดต่อได้ที่ช่องทาง
สั่งทางโทรศัพท์ 086-839-8358
สั่งทางไลน์ ID : baanbaab
สั่งทาง mail : baanbaab.com
หรือสั่งทางเว็บไซต์ baanbaab.com
ขอขอบคุณข้อมูลจาก baanbaab.com
ต้องการซื้อ-เช่า !!!คอนโดมือสอง บ้านเดี่ยว ทาวน์เฮ้าส์ ที่ดินทั่วไทยมากกว่า 300,000 รายการคลิ๊กที่นี่
ลงประกาศขาย-ให้เช่า ฟรี !!! คอนโดมือสอง บ้านเดี่ยว ทาวน์เฮ้าส์ ที่ดินกับ Dot Property ขายง่าย ขายไว ไม่มีค่าใช้จ่ายลงประกาศเลย


![บ้าน VS คอนโด จะเลือกผ่อนบ้านหรือคอนโดดี [บทความนี้มีคำตอบ]](https://wp-assets.dotproperty-kh.com/wp-content/uploads/sites/9/2022/03/29111126/FB_032022-9-218x150.jpg)


