
สวัสดีค่ะวันนี้เรากลับมาพบกันอีกครั้งนะคะ โดยครั้งนี้เรามีแบบบ้านมาฝากกันอีกเช่นเคยค่ะ โดยตัวแบบบ้านหลังนี้เป็น บ้านครึ่งปูนครึ่งไม้ 2 ชั้น ในงบประมาณที่สามารถสร้างได้ มาจากแบบบ้านของทาง baanbaab.com มีชื่อว่า แบบบ้านW-124 โดยตัวบ้านจะเป็นยังไงนั้นเราไปชมกันเลยค่ะ
ตัวบ้านจากภายนอกลักษณะชั้น2ชั้น โดยตัวบ้านชั้นล่างเป็นปูนและชั้นสองเป็นไม้ ออกแบบหลังคาทรงหน้าจั่ว โดดเด่นด้วยระเบียงข้างบ้าน เหมาะที่จะนั่งเล่นชมบรรยากาศรอบๆ
การตกแต่งภายในเน้นแบบไม่หวือหวา ด้วยวัสดุจากไม้ ผสมกับพื้นปูนผิวสีขาว ให้อารมณ์ที่เรียบง่ายไม่ยุ่งยาก โดยงบ้านหลังนี้เหมาะสำหรับพื้นที่ธรรมชาติหรือในเขตนอกเมือง บ้านไม้กึ่งปูนแบบนี้ดูคลาสสิคดั้งเดิม แถมยังมีโครงสร้างที่แข็งแรงด้วย
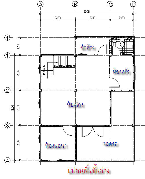
บ้านหลังนี้รวมแล้วมีพื้นที่ใช้สอย 124 ตารางเมตร (ไม่รวมพื้นที่เทปูนรอบบ้าน)โดยหน้ากว้าง 8.00 เมตร x ลึก 10.50 เมตร มี 3 ห้องนอน 1 ห้องน้ำ โดยราคาประมาณก่อสร้าง 7.5-9 แสนบาท (ราคาก่อสร้างขึ้นอยู่กับราคาวัสดุก่อสร้างซึ่งสามารถเปลี่ยนแปลงได้และราคาค่าแรงรับเหมา)
สำหรับท่านใดที่สนใจ บ้านครึ่งปูนครึ่งไม้ 2 ชั้น หลังนี้สามารถติดต่อได้ที่
ทางโทรศัพท์ 086-839-8358
สั่งทางไลน์ ID : baanbaab
สั่งทาง mail : baanbaab.com
ต้องการซื้อ-เช่า !!!คอนโดมือสอง บ้านเดี่ยว ทาวน์เฮ้าส์ ที่ดินทั่วไทยมากกว่า 300,000 รายการคลิ๊กที่นี่
ลงประกาศขาย-ให้เช่า ฟรี !!! คอนโดมือสอง บ้านเดี่ยว ทาวน์เฮ้าส์ ที่ดินกับ Dot Property ขายง่าย ขายไว ไม่มีค่าใช้จ่ายลงประกาศเลย








![บ้าน VS คอนโด จะเลือกผ่อนบ้านหรือคอนโดดี [บทความนี้มีคำตอบ]](https://wp-assets.dotproperty-kh.com/wp-content/uploads/sites/9/2022/03/29111126/FB_032022-9-218x150.jpg)


