

สวัสดีค่ะวันนี้เรากลับมาพบกันอีกครั้งค่ะโดยวันนี้เรามาพร้อมกลับ แบบบ้านทรอปิคอล จากผลงาน บ้านรักษ์ สร้างจาก แบบบ้าน 1BR15005 ลักษณะบ้านชั้นเดียวทรงปั้นหยา แต่งผนังด้วยโทนสีครีม เทา และส้ม มีพื้นที่สำหรับจอดรถใต้ชายคาที่รองรับรถยนต์ได้ถึงสองคัน ประตูและหน้าต่างเลือกใช้แบบกระจกเลื่อนได้ เฉลียงบ้านเล่นระดับยกพื้นสูงเล็กน้อย จัดชั้นวางรองเท้าในจุดนี้

ด้านหลังก็มีเฉลียงใต้ชายคาอีกจุด แต่โซนนี้เป็นพื้นที่สำหรับนั่งพักผ่อน และใช้เวลาว่างส่วนตัว หรือใครอยากจะจัดโต๊ะทานข้าวตรงนี้ พร้อมจัดออกแบบสวนสวยๆ ไว้เชยชม ก็นับว่าเข้าท่าทีเดียวครับ

การตกแต่งภายในใช้โทนสีที่อ่อนโยนดูเบาสบาย ห้องโถงคุมโทนสีขาว ตัดด้วยผนังสีมิ้นต์ ติดตั้งฝ้าหลุมพร้อมทั้งโคมไฟแขวนที่ดูหรูหรา บริเวณนี้จะเป็นโซนรับแขก สำหรับจัดมุมโซฟาพร้อมทีวี สร้างความโปร่งโล่งที่ภายในด้วยการเลือกใช้ประตูแบบกระจก ซึ่งมีส่วนช่วยให้แสงสว่างภายนอกได้มีส่วนกับภายในอย่างเต็มที่ สามารถติดม่านสวยๆ เพื่อสร้างความเป็นส่วนตัวได้


ถัดเข้าไปจะเป็นส่วนครัว มีเคาน์เตอร์ที่ยาวติดผนังถึงสองด้าน เพื่อการทำอาหารที่สะดวกสบาย พร้อมด้วยครัวแบบฝรั่งทันทันสมัยสุดๆ ติดตั้งปล่องดูดควันป้องกันกลิ่นเหม็นฟุ้งกระจาย ทอปสีดำตัดกับเคาน์เตอร์ครัวสีขาวได้อย่างลงตัว แต่งขอบมุมด้วยลวดลายแพทเทิร์นโชว์สีสันเล็กๆ น้อยๆ


ห้องน้ำเก็บงานได้สวยเนี้ยบทันสมัย ด้วยสีสันที่หลากหลาย ตอบโจทย์คนที่เบื่อความจำเจ



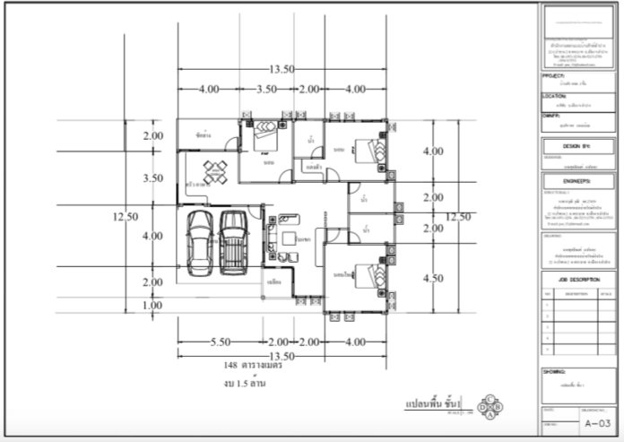
แบบบ้านทรอปิคอล พื้นที่ใช้สอย 170 ตารางเมตรบ้านหลังนี้ประกอบไปด้วย 3 ห้องนอน 3 ห้องน้ำ
งบประมาณในการก่อสร้างจะอยู่ที่ 2.05 – 2.25 ล้านบาทโดยประมาณ(ไม่รวมตกแต่ง) สำหรับท่านไหนสนใจติดต่อได้ที่ เบอร์ 097-9789822







ขอขอบคุณข้อมูลจากnaibann.com รูปจาก แบบบ้าน 1BR15005 โดย บ้านรักษ์
ต้องการซื้อ-เช่า !!!คอนโดมือสอง บ้านเดี่ยว ทาวน์เฮ้าส์ ที่ดินทั่วไทยมากกว่า 300,000 รายการคลิ๊กที่นี่
ลงประกาศขาย-ให้เช่า ฟรี !!! คอนโดมือสอง บ้านเดี่ยว ทาวน์เฮ้าส์ ที่ดินกับ Dot Property ขายง่าย ขายไว ไม่มีค่าใช้จ่ายลงประกาศเลย


![บ้าน VS คอนโด จะเลือกผ่อนบ้านหรือคอนโดดี [บทความนี้มีคำตอบ]](https://wp-assets.dotproperty-kh.com/wp-content/uploads/sites/9/2022/03/29111126/FB_032022-9-218x150.jpg)


